現CANON事務所
最終更新日:2025年11月27日
| 種 別 | 事業用 | 態 様 | 仲介 |
|---|---|---|---|
| 問合せ番号 | |||
| コメント | 現CANON事務所 | ||
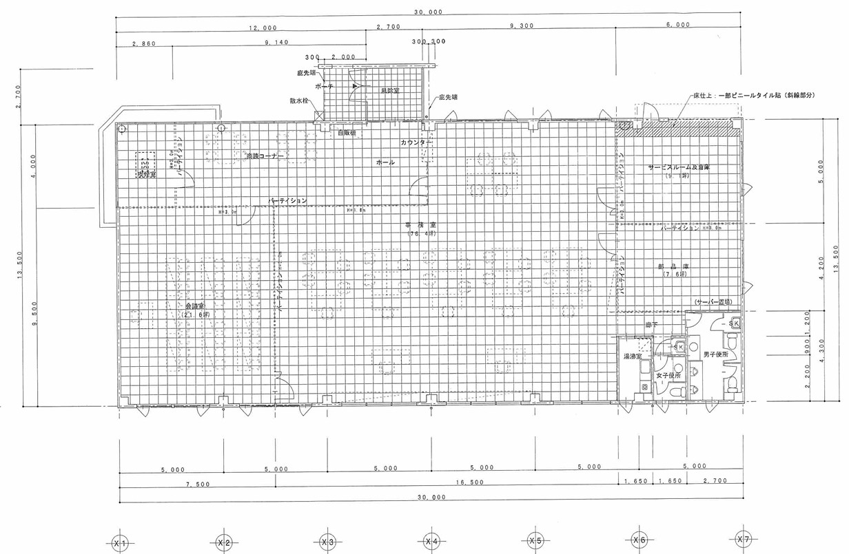
| 物件名 | 新井田CANON事務所 | ||
| 所在地 | 青森県八戸市大字新井田字鷹清水5番地 | ||
| 交 通 | |||
| 月額賃料 | 58万円 | 坪単価 | |
|---|---|---|---|
| 敷 金 | 賃料×2 | 礼 金 | 賃料×1 |
| 共益費 | 無し | 仲介料 | 賃料+消費税 |
| 前家賃 | 賃料×1 | 管理費 | |
| 契 約 | 借主都合による | ||
| 間取り | 1R | 間取り詳細 | |
|---|---|---|---|
| 坪 数 | 124.71坪 | 占有面積 | 412.29㎡ |
| 築年月日 | 平成18年新築 | 構 造 | 鉄骨造亜鉛メッキ鋼板葺平屋建て |
| 物件の階数 | ベランダ | ||
| 入居可能日 | 令和8年1月以降 | 保 険 | 要借家人賠償保険 |
| 駐車場 | (土地517.47坪) | ペット | 不可 |
| バ ス | トイレ | ||
| 学区(小) | 学区(中) | ||
| 設 備 | 賃料は税抜き価格となり、別途消費税を徴収致します。 | ||
| 備 考 | |||