(商談中)☆20260224値下げします☆八戸市南白山台中古住宅
最終更新日:2026年03月05日
| 取引種目 | 売買建物 | 問合せNo | 取引態様 | 仲介 | |
|---|---|---|---|---|---|
| コメント | (商談中)☆20260224値下げします☆八戸市南白山台中古住宅 | ||||
| 所在地 | 青森県八戸市南白山台2丁目12-14 | ||||
| 価 格 | 1,380万円 | ||||
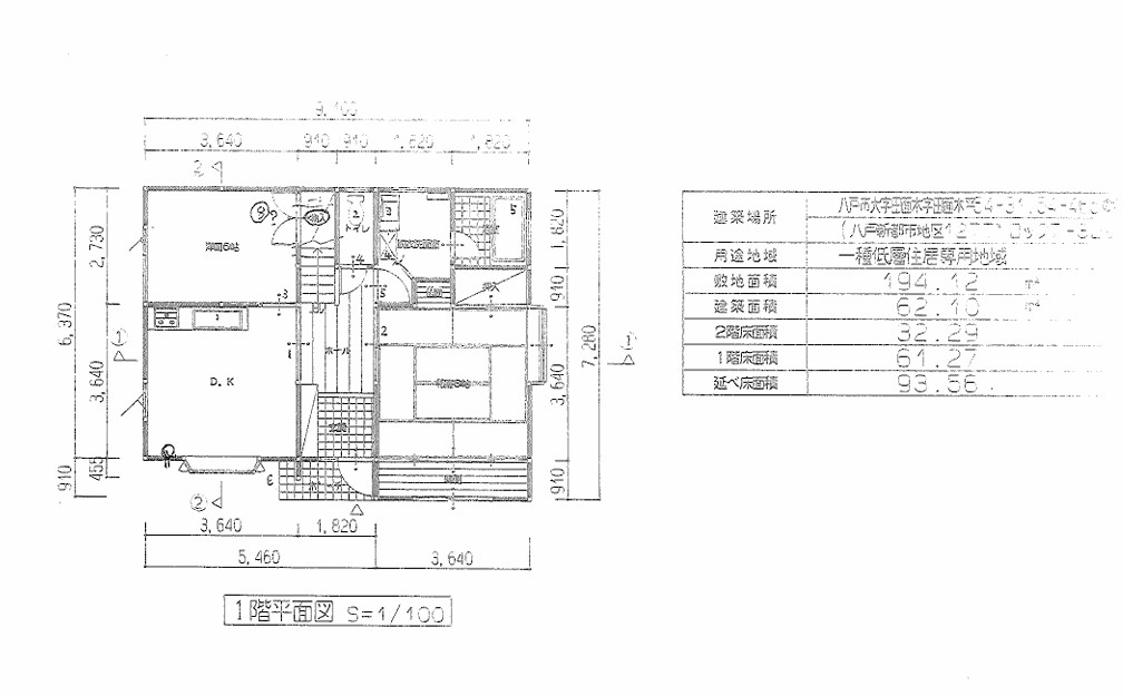
| 間取り | 4DK | ||||
| 交 通 | |||||
| 土地面積 | 194.20㎡(58.7坪) | 他、私道面積 | なし |
|---|---|---|---|
| 建物構造 | 木造亜鉛メッキ鋼板葺2階建 | 建物面積 | 1階61.27㎡ 2階32.29㎡ 合計93.56㎡(28.3坪) |
| 間取内訳 | 1階(8帖DK.6洋間.8和室)2階(8帖洋間4WIC.5.5帖洋間.) | ||
| 接道状況 | 西側八戸市市道に10.45m接道 | ||
| 築年月日 | 平成11年 | 現 況 | 売主居住中 |
| 引渡し時期 | 契約締結決済後 | 駐車場 | 3台から4台 |
| 土地権利 | 所有権 | 地 目 | 宅地 |
| 都市計画 | 市街化区域 | 用途地域 | 第一種低層住居専用地域 |
| 建ペイ率(%) | 50 | 容積率(%) | 80 |
| 学区(小) | 西白山台小学校 | 学区(中) | 白山台中学校 |
| ガ ス | トイレ | 1階 | |
| 備 考 | 現在居住中のため内覧ご希望の方は、事前に希望の日程を佐藤不動産開発までご連絡お願いします。 | ||